Año
2025
Especialidad
Diseño y construccion
Proyecto
Vichuquen
Tiempo de construccion
6 meses

Introduccion
Eficiencia por diseño — Sofisticación por método.
La eficiencia en el uso de los recursos es el pilar de la economía contemporánea, y en la arquitectura, es nuestra mayor inspiración. Hemos reimaginado el concepto de hogar a través de un sistema de módulos intercambiables, devolviendo al cliente el poder de proyectar su espacio. Sin pérdidas de tiempo ni excedentes innecesarios, entregamos una estética limpia, moderna y profundamente elegante. Nuestra propuesta es la arquitectura modular en su estado más puro: precisión desde la raíz.



Descripcion
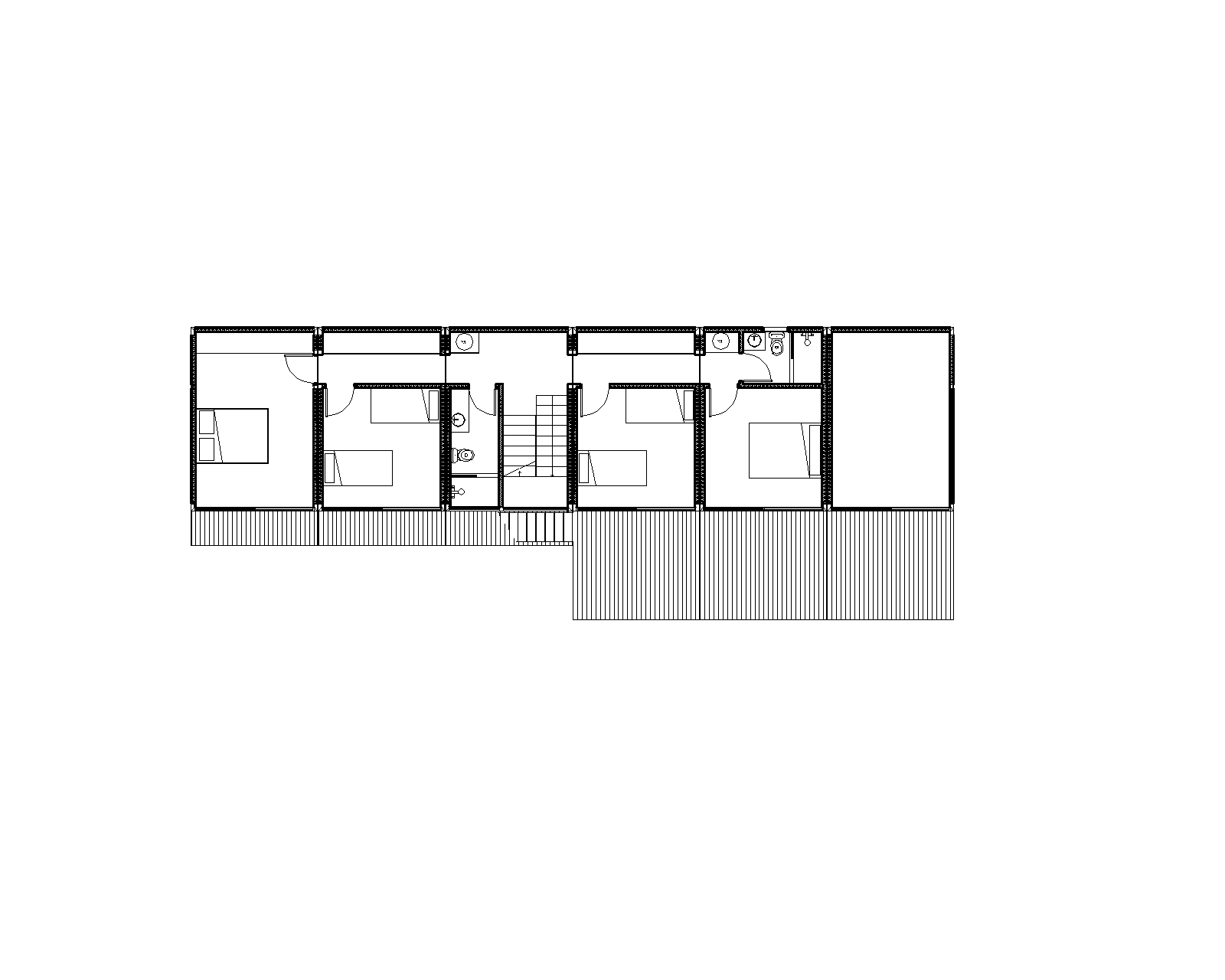
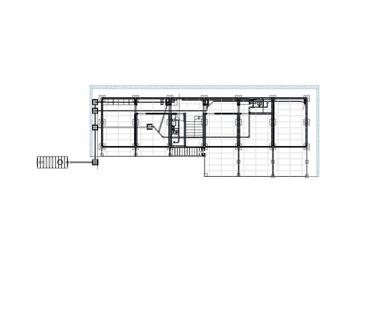
Autodiseño Habitacional: Cuando el Usuario Define la Arquitectura
Para comenzar, proponemos evidenciar —más que declarar— el modelo constructivo que estamos desarrollando. La Casa Vichuquén se presenta como un caso de estudio donde el sistema de autodiseño deja de ser una promesa y se transforma en una metodología tangible. El proceso se inicia con una decisión poco habitual en la práctica tradicional: es el cliente quien define, con claridad programática, los espacios que darán forma a su habitar, estableciendo un orden y jerarquía propios. A partir de esta matriz inicial, el proyecto no se impone, sino que se interpreta. Sobre esa base, y en diálogo con nuestras tipologías modulares, se articula una propuesta que no responde únicamente a una lógica compositiva, sino a una síntesis rigurosa de múltiples variables: accesibilidad, funcionalidad, coherencia espacial, expresión estética y viabilidad constructiva. Cada módulo deja de ser una pieza aislada para convertirse en parte de un sistema que busca equilibrio entre libertad y precisión. El resultado no es solo una vivienda, sino una experiencia espacial que evidencia una nueva manera de proyectar: una arquitectura capaz de adaptarse con flexibilidad a las decisiones del usuario, sin renunciar a un lenguaje propio ni a estándares técnicos consistentes. La Casa Vichuquén, en este sentido, no solo resuelve un encargo particular, sino que instala una pregunta más amplia sobre cómo habitamos y cómo diseñamos en un contexto donde la personalización ya no es excepción, sino punto de partida.
Final thoughts
Making your supply chain a living system, not a fixed framework:
Supply chains should evolve. They’re not static infrastructures—they’re intelligent systems in motion. As your operations expand, your network should adapt too. New routes, refined processes, stronger partnerships, bolder strategies. Every decision matters. From the first mile to the final delivery, every movement carries meaning. A small optimization can say more about your precision and care than a thousand data points ever could. This is where excellence lives—not in expansion alone, but in thoughtful evolution. And most importantly, a great supply chain feels unfinished in the best way possible—it leaves room for innovation, for agility, for transformation. Because logistics should grow as the world does. They should adapt with your goals, shift with your markets, and expand with your vision. Get more transformation insights on Urban Glow Insights.


Final thoughts
Making your supply chain a living system, not a fixed framework:
Supply chains should evolve. They’re not static infrastructures—they’re intelligent systems in motion. As your operations expand, your network should adapt too. New routes, refined processes, stronger partnerships, bolder strategies. Every decision matters. From the first mile to the final delivery, every movement carries meaning. A small optimization can say more about your precision and care than a thousand data points ever could. This is where excellence lives—not in expansion alone, but in thoughtful evolution. And most importantly, a great supply chain feels unfinished in the best way possible—it leaves room for innovation, for agility, for transformation. Because logistics should grow as the world does. They should adapt with your goals, shift with your markets, and expand with your vision. Get more transformation insights on Urban Glow Insights.



Final thoughts
Making your supply chain a living system, not a fixed framework:
Supply chains should evolve. They’re not static infrastructures—they’re intelligent systems in motion. As your operations expand, your network should adapt too. New routes, refined processes, stronger partnerships, bolder strategies. Every decision matters. From the first mile to the final delivery, every movement carries meaning. A small optimization can say more about your precision and care than a thousand data points ever could. This is where excellence lives—not in expansion alone, but in thoughtful evolution. And most importantly, a great supply chain feels unfinished in the best way possible—it leaves room for innovation, for agility, for transformation. Because logistics should grow as the world does. They should adapt with your goals, shift with your markets, and expand with your vision. Get more transformation insights on Urban Glow Insights.


Final thoughts
Making your supply chain a living system, not a fixed framework:
Supply chains should evolve. They’re not static infrastructures—they’re intelligent systems in motion. As your operations expand, your network should adapt too. New routes, refined processes, stronger partnerships, bolder strategies. Every decision matters. From the first mile to the final delivery, every movement carries meaning. A small optimization can say more about your precision and care than a thousand data points ever could. This is where excellence lives—not in expansion alone, but in thoughtful evolution. And most importantly, a great supply chain feels unfinished in the best way possible—it leaves room for innovation, for agility, for transformation. Because logistics should grow as the world does. They should adapt with your goals, shift with your markets, and expand with your vision. Get more transformation insights on Urban Glow Insights.
(03)
PROJECTS






